Продаж будинку
Київ
497.0 м.кв. Ділянка 10 соток
11 395 000 грн.
Продаж |
Оренда |
11 395 000 грн. |
- |
|
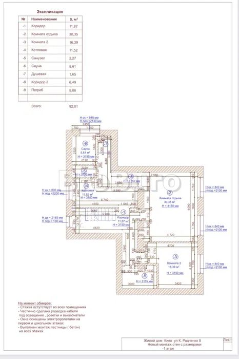
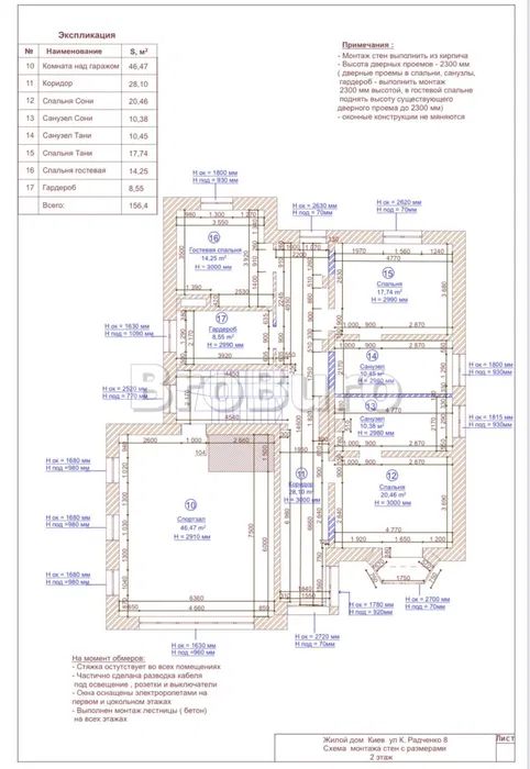
Поверховість - 3 поверхи Кількість кімнат - 7 кімнат Загальна площа, - 497.0 м.кв. Ділянка - 10 соток. Киев, Голосеевский район (Вита-Литовская, Чапаевка) - напротив динамовских футбольных полей, за рестораном “FABIUS”. Дом 497m2 из кирпича и керамоблока с наружным утеплением 50 мм., и клинкерным кирпичом. Дом введён в эксплуатацию. Киевская прописка. Площадь участка - 10 сот. (под жилую застройку). Кровля - битумная черепица с мембраной и утеплением 250 мм. базальтовой ватой. Асфальтированный подъезд Капитальный забор Автоматические ворота Автоматические роллеты Видеонаблюдение Коммуникации: - электричество (ДТЭК, 2 ввода) - 32 кВт - газ - вода - скважина (27 м.) - канализация - септик (30 2) с переливом. Отопление - газовый котёл (закуплен), возможно подключение эл.котла, теплового насоса и твердотопливного котла. Газон Плодовые деревья Огород Открытый бассейн - 4*8. с возможной установкой противотока. Молниезащита. Терраса с барбекю. Выполнена укладка трассы отвода ливневых вод с участка. Проектом предусмотрено: • 4 спальни • Кабинет • 5 с/у • Спортивный зал • Сауна • Комната отдыха с камином • Каминный зал с выходом на террасу • Кухня-столовая с выходом на террасу • Гараж на 2 авто Готовность дома - под отделку. Возможен обмен на квартиру к Киеве. |
|
|---|---|




















